項目地點:融創中心
面積:155平米
設計師:馮海燕

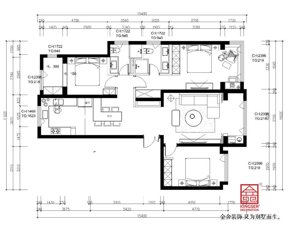
原始戶型圖

平面布局圖
【戶型優點】
①戶型周正,真正的南北通透。
②具備入戶門廳,每個臥室空間都足夠用,四個陽臺(可改造)利用率很大
③衛生間安排合理,后期改水電位置很少,因為開發商給預留的水電位置很多。整體評分9.5★★★★
【戶型缺點及改動】
①餐廳和廚房安排的比較擁擠,儲藏是個問題。
解決方案:廚房墻體能打掉,這樣就把餐廳擴大一些,陽臺也利用上了。
廚房整個做成開放式的,吧臺和餐桌連起來,這樣整個空間就更通透了,要根據每家的實際情況結合進行考慮。
缺點②沒有入戶鞋帽區,隨手的鑰匙啊包沒有地方放,尤其是冬天的大衣很厚
缺點③沒有獨立衣帽間的位置,每個臥室的儲藏空間要好好規劃