漢王府200平米躍層裝修戶型解析:戶型比較通透,利于室內空氣流通,比較有利于居住者的身心健康,臥室的空間也比較大,整體布局也比較舒展,尺度寬松,動靜分區,不會讓人產生空曠與隔閡感。戶型比較合理房間與房間之間有一定的距離,人們的活動不會相互影響,各個臥室基本都有陽臺相連,采光、通風、景觀效果非常好。客廳與餐廳的面積較大適合家庭聚餐或者會客。樓梯與埡口有些許咬口不過可以后期可以通過砌墻來改變。二層的陽臺無法全部封住,有一些位置無法充分利用。

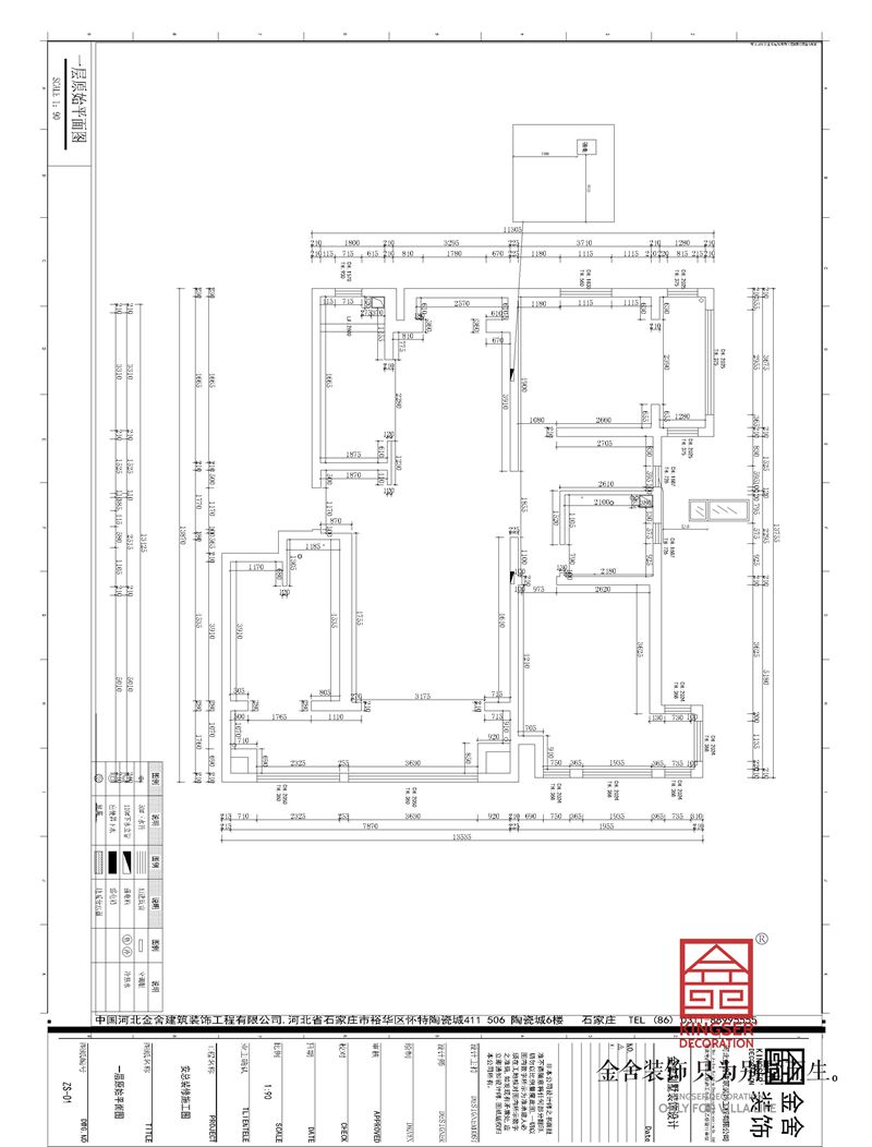
漢王府200平米躍層裝修戶型一層原始戶型圖

漢王府200平米躍層裝修戶型二層原始戶型圖

漢王府200平米躍層裝修戶型一層平面布置圖

漢王府200平米躍層裝修戶型二層平面布置圖